The Birstwith

Plot 5
4
3
2
To Be Released

The Birstwith is an exceptional four-bedroom home, thoughtfully arranged across three floors and crafted for modern family living.

At its heart lies an open-plan kitchen and living space designed for both everyday life and effortless entertaining. Flooded with natural light, this area features elegant bi-fold doors that open seamlessly onto the garden, creating a perfect indoor-outdoor connection.

Upstairs, four generously sized double bedrooms offer comfort for the whole family, with two benefitting from ensuite bathrooms. The second floor also hosts a dedicated study, providing an ideal space for home working or quiet retreat.

Complete with two allocated parking spaces, an electric vehicle charging point, and a high-quality specification throughout, The Birstwith offers a home that is as practical as it is beautiful.

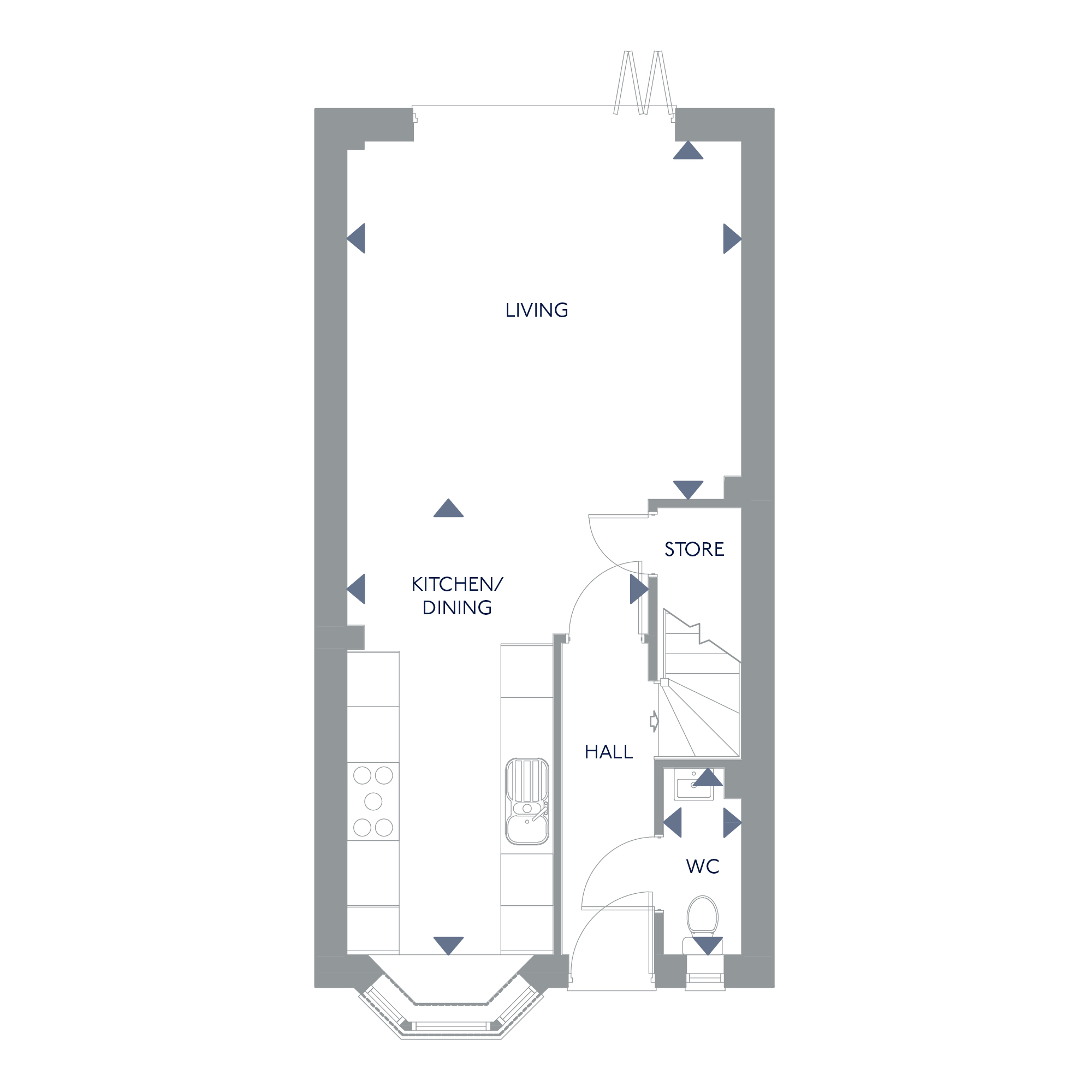
Floor Plan

Living

4.13 x 4.55m / 13’7” x 14’11”

Kitchen/Dining

5.26 x 3.47m / 17’3” x 11’5

WC

2.15 x 0.90m / 7’0” x 2’11”

Bedroom 1

3.00 x 4.55m / 9’10” x 14’11”

Ensuite 1

1.55 x 2.51m / 5’1” x 8’3”

Bedroom 2

3.50 x 2.70m / 11’6” x 8’10”

Ensuite 2

2.15 x 1.75m / 7’1” x 5’9”

Bedroom 3

4.41 x 2.51m / 14’6” x 8’3”

Bedroom 4

3.75 x 2.51m / 12’4” x 8’3”

Study

2.15 x 1.94m / 7’1” x 6’4”

Bathroom

3.00 x 1.94m / 9’10” x 6’4”

Floor plans are intended to provide a general indication of the proposed property layout. Dimensions are for guidance only and plans are not to scale.
Measurements are approximate. The specification, layout and finish of the property is subject to change. Computer generated images are intended for illustrative
purposes and should be treated as general guidance.

Key Features

  • Open plan kitchen, dining and living area with bifold doors leading to the rear garden
  • Entrance hallway
  • Downstairs WC
  • Ensuite to bedrooms 1 and 2
  • Study to second floor
  • 2 parking space and car charger

Property Location

Never Miss A Thing

Sign up to our New Homes News and be the first to find out about savings, as well as access developments before we promote to the public.

This site is protected by reCAPTCHA
and the Google Privacy Policy and Terms of Service apply.